Appartamento Londra

  • Località:

    Londra
  • Progettisti:

    Arch. Marco Gaudenzi
  • Anno di Realizzazione:

    2009
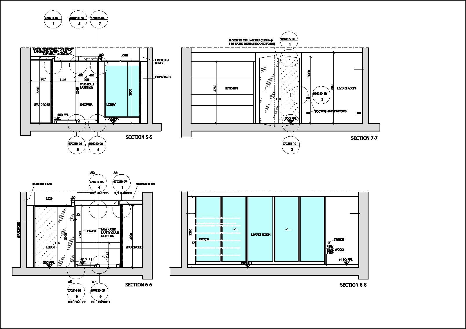
E' stato un gioco,dal tutto finto al tutto vero. Con l'essenzialità di fondo del progetto a incastrarsi con la ricercatezza dei dettagli. L'idea è stata di pulire tutto,creando un grosso spazio diviso solo da una parete di cristallo verde acido. Un effetto shock sul corridoio centrale che corre,attraverso una vetrata,verso il terrazzino affacciato sul parco. Tutto è stato fatto in Italia e portato nel nuovo palazzo londinese. L'angolo cucina è dominato da un balcone all'americana,c'è una sola grande stanza con angolo palestra e guardaroba in cristallo. La Toilette è rivestita da carta di giornale rosa come se fosse carta da parati. Un pò palestra,un pò yacht,un pò loft...